Project Credits & Specs
- Architecture: Stempel & Tesar architekti
- Photography: Filip Šlapal
- Location: Prague, Czech Republic
- Area: 282 m2
- Year: 2025
More
- Design Team: Ján Stempel, Jan Jakub Tesař
- Main Engineer: Aleš Herold
- Landscape Architect: Terra Florida [Lucie Vogelová]
- Project Year: 2019
- Plot Size: 578 m2
- Built-Up Area: 162 m2
- Usable Floor Area: 205 m2

Project Description
At the foot of a hill, within a mature urban fabric bordered by a tram line, a small vacant gap remained undeveloped for many years. It lies in Prague’s Troja district — a beautiful and diverse residential neighbourhood showcasing homes from various eras, including contemporary award-winning family houses.




What began as a fairly traditional brief in terms of room numbers and sizes was complemented by a clear, uncompromising vision for the structure’s materiality. Concrete did not emerge through discussion — it was a firm and non-negotiable requirement from the client for both the exterior and interior. This opened the door to fully exploring concrete’s unique properties and potential in terms of mass, texture, and color.
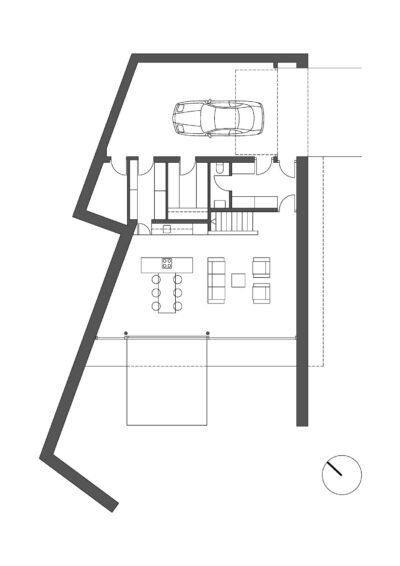
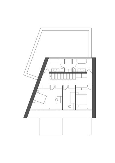
The result is not “just” a sculptural house, but a thoughtful, functional spatial composition with a logical layout of rooms. The site’s main disadvantage — its immediate proximity to a tram line — ruled out opening the living areas toward the southeast and the entrance side. This prompted us to shield the house on that side, protecting it from the noise of the busy track. Thanks to extended walls, not only the rooms but also the garden’s living area becomes a secluded oasis of peace and privacy.


The intention to visually separate the ground floor from the upper level is underscored by two distinct tones and textures of concrete. The base, made with board-formed concrete and pigment, is dark and tactile, while the upper floor is light and smooth. The ground floor blends with the garden; its walls seamlessly transition into the hillside’s retaining structures, while the almost white upper volume merges with the sky.


Using exposed concrete for both exterior and interior called for a sandwich wall construction to meet thermal insulation requirements. The concreting was done in two stages: first, the inner load-bearing exposed concrete walls were cast, then insulated, followed by casting a thinner exterior facing layer, known as the “monierka.” The concrete pour also had to account for recessed connection joints for the window frames.


Thanks to concrete’s excellent thermal mass and the shaded glazed areas created by protruding structures, the house maintains a comfortable indoor climate throughout both summer and winter. The underfloor heating is powered by a heat pump.




The interior is structured with custom-built-in furniture made of birch veneer, which separates individual rooms. The light-colored veneer harmonizes with the texture of the concrete — in both materials, every minor imperfection and natural pattern makes each square meter a unique original.


Materials
Reinforced concrete – main load-bearing structure made of double-sided exposed concrete with integrated thermal insulation, lacquered veneered MDF – custom-built furniture, cement screed – flooring.
The project description is provided by the architects via Linka.
About the Architects

Stempel & Tesar architekti
Professor Ján Stempel has become one of the leading respected Czech architects in his 40 years of experience. He gained his first experiences at the legendary SIAL studio and then used these experiences as co-owner of the ADNS office. To attend each project personally and carefully, he left his regular large office and became a teacher at the Faculty of Architecture of CTU in Prague. Here, he raised his new partner. A generation younger, his office partner had the opportunity to experience top architecture in the Netherlands while studying at the prestigious University of Delft and a job internship at Jeanne Dekker’s renowned architecture office. During his graduation from the Faculty of Architecture in Prague, he was approached by his professor and the head of his diploma project for cooperation. And here begins the history of the Stempel & Tesař.






















