Project Credits & Specs
- Architecture: YOD Group
- Photography: Mykhailo Lukashuk
- Location: Kyiv, Ukraine
- Area: 50 m2
- Year: 2026
- Design Team: Volodymyr Nepyivoda, Dmytro Bonesco, Natalia Tymochesko, Yana Rogozhinska

Project Description
Set on a private estate in central Ukraine, these guesthouses offer a contemporary reinterpretation of the traditional Ukrainian mazanka – the archetypal rural home shaped by local materials, climate, and cultural rituals.


Concept
Traditional Ukrainian vernacular architecture evolved through simple yet expressive solutions: thick whitewashed walls, thatched roofs, and regular plastering as an act of care and an aspiration toward order and beauty. In YOD Group’s contemporary interpretation of traditional Ukrainian Hata-Mazanka, this pursuit of light and cleanliness is translated into fully transparent glass façades. At the same time, the roof – deliberately oversized – becomes the project’s primary architectural gesture.

Its sculptural form defines a strong, instantly recognisable silhouette, evoking both a traditional tall hat and an oversized mushroom rising from the landscape.
“Our philosophy of terroir design goes beyond working with local materials or familiar forms – it is about uncovering the essence of a place and decoding its cultural meanings,” explains Volodymyr Nepiyvoda, co-owner and managing partner of YOD Group. “We studied the image of the traditional Ukrainian house, distilled its core characteristics, and reinterpreted them through our own lens to create a contemporary architectural object.”




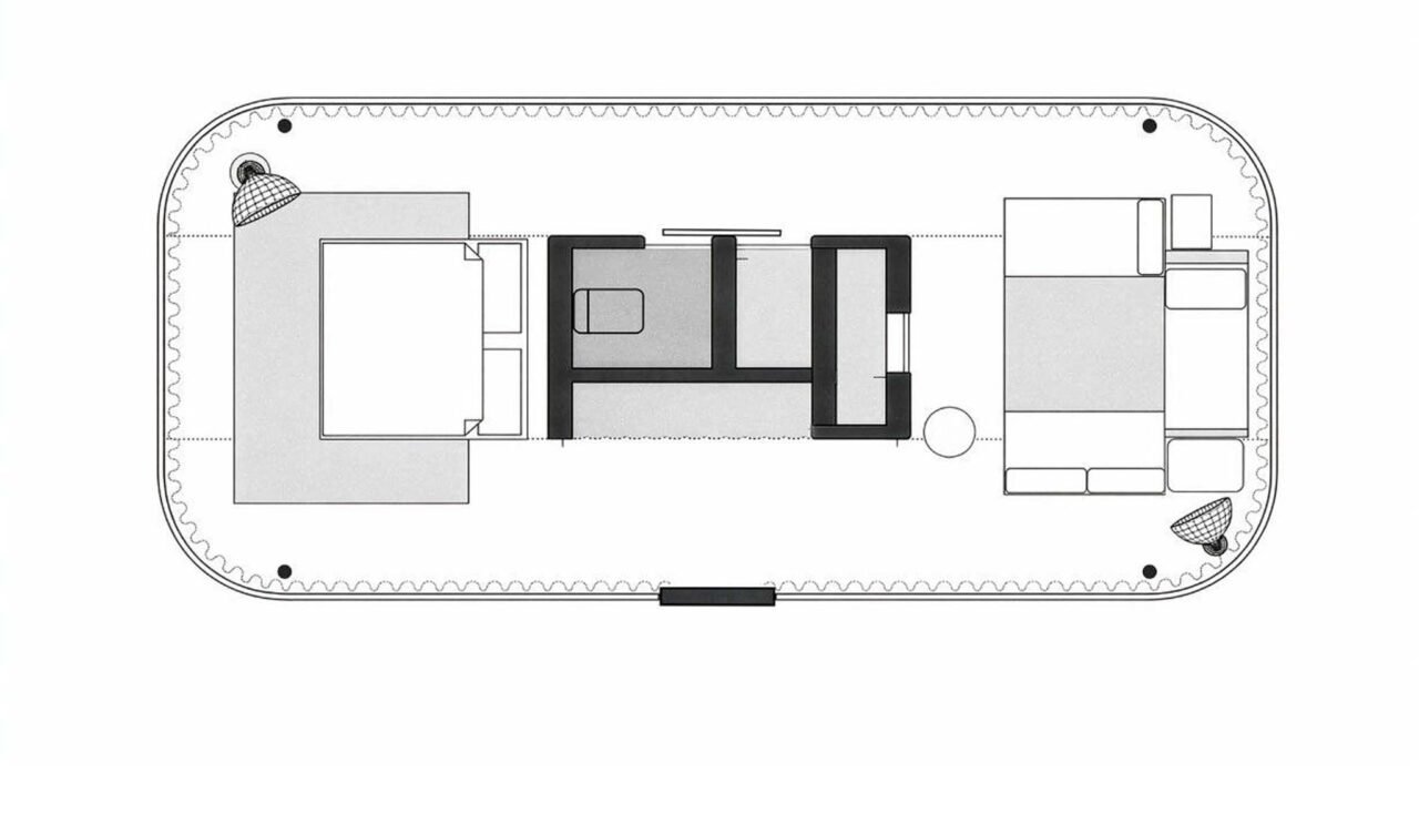
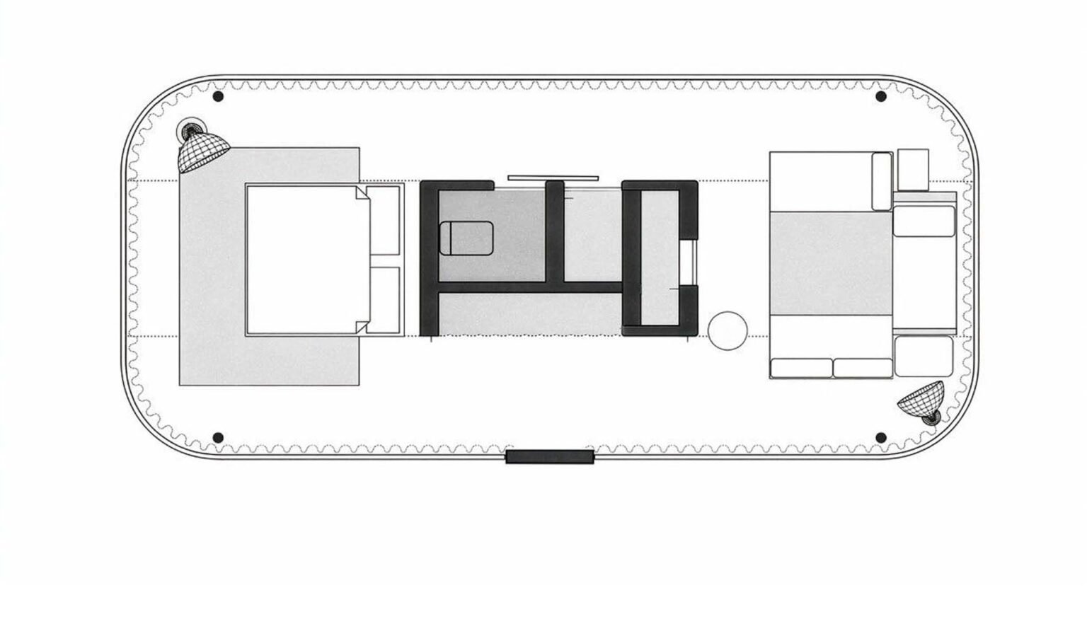
Transparent boundaries between interior and landscape
The spatial layout is organised around a functional core – a central concrete block containing the bathroom. On either side are the bedroom and the living area. The living room features a minimalist fireplace, a contemporary reference to the traditional Ukrainian stove.
The absence of a television is a deliberate choice. Watching the live flame through the circular opening of the fireplace and maintaining constant visual contact with the surrounding nature encourages informational detox and emotional restoration.




During the day, the fully glazed façades visually dissolve, creating the impression that the massive thatched roof is floating above the landscape. Inside and outside, the floor is finished with a continuous stone-carpet surface, pleasant to the touch and offering a subtle massage-like sensation when walking barefoot.
The uninterrupted glazing enhances the sense of immersion in nature, allowing the landscape to become an integral part of the emotional experience. When privacy is needed, guests can close dense yet visually light curtains, operated automatically via a control panel located by the bed.




Eco-minimalism with a local accent
The interior follows the principles of modern eco-minimalism. A restrained, natural colour palette, a wide variety of tactile surfaces, and objects by Ukrainian brands come together to create a calm, cohesive environment.
The space features furniture by Noom, black clay decor by Guculiya, and textured wooden elements throughout. One of the key bedroom accents is a large custom-made floor lamp crafted from ceramics and natural fibres, adding warmth and sculptural presence.




Engineering embedded in architecture
The inner surface of the roof dome is clad in wooden tiles that reference traditional wooden shingles historically used on Ukrainian rooftops. Rising to a height of 10 metres at its apex, the dome enhances the sense of openness and verticality, while allowing all engineering systems to remain fully concealed, leaving the walls visually clean and uninterrupted.
A heat pump system maintains a comfortable indoor climate throughout the year. The concealed air-conditioning is integrated with supply ventilation, operating through discreet linear slots in vertical grilles and exhaust outlets built into the dome and the central core.







The architects provide the project description via v2com.
About the Architects

YOD Group is a commercial design studio that gained broad experience in hospitality and has grown into a development and design company. The firm’s purpose is to create successful establishments that bring innovation and transform the hospitality industry. They have consolidated professionals who are the best in their industries, and they specialize in restaurants, hotels, bars, coffee houses, spa centers, offices, event halls, and gated communities. YOD Group creates not only the business wrap but also the business itself.




























